
Crane Uchafswm Trydan Gwyrdd Trydan Dwbl Olew Ewropeaidd
Mae Crane Gorchudd Gwyrdd Sengl Ewropeaidd yn beiriannau codi cryno wedi'u dylunio a'u gweithgynhyrchu yn unol â safon FEM a DIN, sydd â thechnoleg uwch a dylunio hardd. Wedi'i rannu'n fath gyffredinol a math o ataliad, gan gefnogi'r defnydd o daithiad trydan safonol Ewropeaidd, sy'n addas ar gyfer trin gweithdy a deunydd warws, cynulliad manwl a mannau eraill.
Crane Uchafswm Trydan Gwyrdd Trydan Dwbl Olew Ewropeaidd
Disgrifiad byr:
Mae Crane Gorchudd Gwyrdd Sengl Ewropeaidd yn beiriannau codi cryno wedi'u dylunio a'u gweithgynhyrchu yn unol â safon FEM a DIN, sydd â thechnoleg uwch a dylunio hardd. Wedi'i rannu'n fath gyffredinol a math o ataliad, gan gefnogi'r defnydd o daithiad trydan safonol Ewropeaidd, sy'n addas ar gyfer trin gweithdy a deunydd warws, cynulliad manwl a mannau eraill.

Gellid ei ddefnyddio'n helaeth mewn gweithgynhyrchu peiriannau, meteleg, petroliwm, porthladd, rheilffordd, awyrennau sifil, bwyd, gwneud papur, adeiladu, gweithdy diwydiannau electroneg, warws a sefyllfaoedd trin deunyddiau eraill, esp. yn berthnasol i drin deunyddiau sydd angen lleoliad manwl gywir, cydrannau mawr sefyllfa union gywir.

Delweddau Manwl:

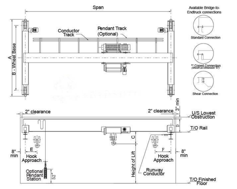
Darlun Braslun:

Paramedrau Technegol:
Span | m | 7.5 | 10.5 | 13.5 | 16.5 | 19.5 | 22.5 | 25.5 |
Gallu | t | 1 ~ 12.5t | ||||||
Cyfanswm pwysau | kg | 1781 ~ 12086 | ||||||
Pwysau troli | kg | 405 ~ 740 | ||||||
Max. Llwyth Olwyn | c | 13.5 ~ 90.94 | ||||||
Rheilffordd Teithio | P24 ~ P43 | |||||||
Cyflymder codi | m / min | 0.8 / 5 | 0.8 / 5 | 0.8 / 5 | 0.8 / 5 | 0.8 / 5 | 0.8 / 5 | 0.8 / 5 |
Uchder codi | m | ≥ 6 | ≥ 6 | ≥ 6 | ≥ 6 | ≥ 6 | ≥ 6 | ≥ 6 |
Cyfanswm pŵer modur | kw | 4.31 | 4.31 | 4.31 | 4.31 | 4.67 | 4.67 | 4.67 |
Cyflymder crane | m / min | 3-30 | 3-30 | 3-30 | 3-30 | 3-30 | 3-30 | 3-30 |
Cyflymder troli | m / min | 2-20 | 2-20 | 2-20 | 2-20 | 2-20 | 2-20 | 2-20 |
Dyletswydd weithio | M5 / A5 | |||||||


English
Čeština
Bai Miaowen
Italiano
Български
हिंदी
Français
한국어
România limbi
日本語
українська
dansk





